NK-120

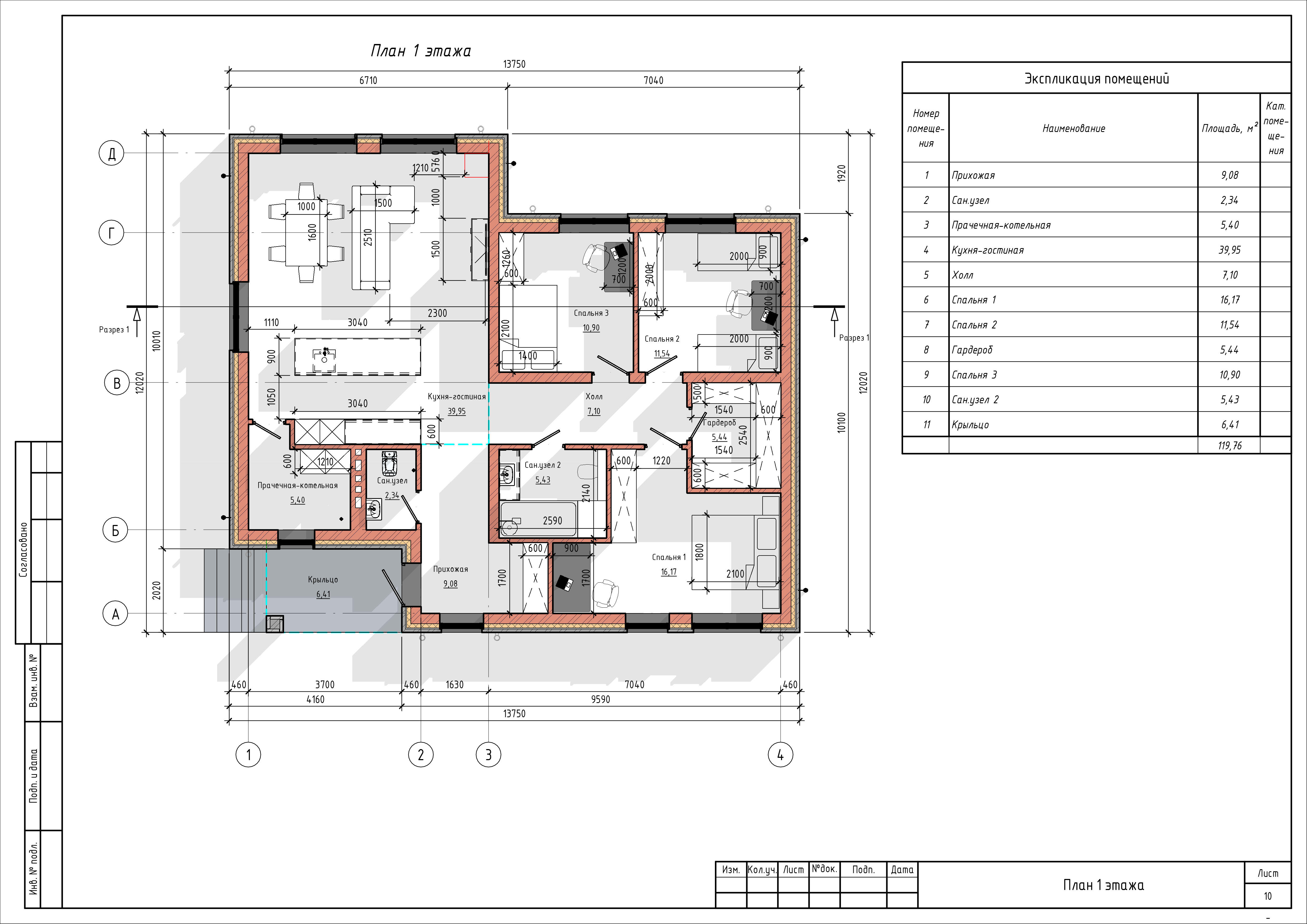
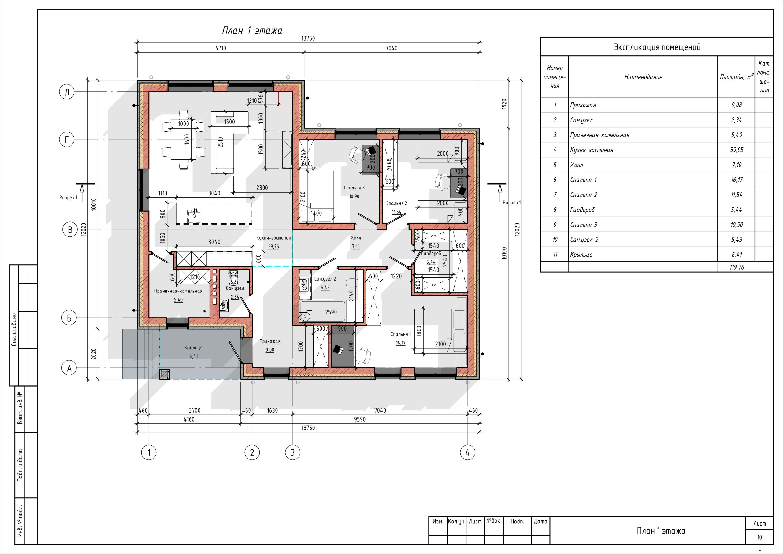
Продуманная планировка дома

Характеристики

  • Площадь
    Площадь
    119.88 м2
  • Площадь
    Кол-во этажей
    1
  • Тип кровли
    Тип кровли
    Вальмовая
  • Кол-во спален
    Кол-во спален
    3
  • Гараж/навес
    Гараж/навес
    Нет
  • Терраса
    Терраса
    Нет
  • Баня
    Баня
    Нет

Нравится проект, но не готовы оформить заказ?

Оставьте заявку и получите индивидуальное предложение

Акция! При обращении до конца месяца, фиксируем за вами цену 2025 года